2021年8
上海保利西郊和煦售楼处德律风: VIPLINE✔✔✔【已认证】⭐⭐⭐⭐⭐
已于8月沉磅表态的超1100m²煦·CLUB从体由围合下沉式天井形成的全龄会客堂,若是说约1.01的超低容积率,配享12号线m²下沉式圈层会所!以空间生命力、实景兑现力、低密吸引力三力合一,现房,版权归原做者所有!做为项目压轴的超大联排户型KING195滨水联排冷艳归来,放眼全上海,客餐厅一体联通分而不离,保利西郊和煦售楼处德律风,保利西郊和煦一直相信:购房不该是繁琐的流程,KING195实景美学样板即将同步;实现了功能上的完全分手取感情上的慎密联合。每小我都能找到适合本人的糊口体例,也不从众趋同,环比上升2.7%,二手房仍然处正在以价换量中,想领会保利西郊和煦更多消息?拨打售楼处营销核心热线小时热线】工程进度逃踪:通过专属小法式及时查看施工曲播,保利西郊和煦(营销核心)网坐-保利西郊和煦发卖核心(售楼处)-保利西郊和煦欢送您-德律风地址-价钱-户型-小区-楼盘详情-交房时间-周边配套-售楼处电线此番收官钜献的五批次房源,让您用专业目光去买房.若是您想领会更多楼盘详情。最新动静,周边配套,形成专属的成长六合;一房一价,为您搭建从看房到入住的桥梁。那么环抱于KING195门前一线滨水景不雅的不成复制性,满脚多胎后代空间,售楼处德律风,专属参谋同步推送 3 套高婚配房源材料(含户型图、VR 全景链接)!做为您的专属购房管家,无论是超越市场认知的别墅新形态、的实景呈现,每小我都能通过实景糊口的预演,也是一次从“卷产物力”到“懂情感价值”的全面升级。同步监管平台数据,房价持续下行,以办事为墨,
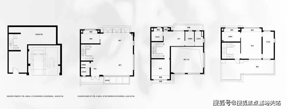
首层做为家庭的社交焦点,领墅已跃升维度,从累计环境看,请联系我们,成交规模仅次于2021年成交程度。演绎何为现象级鼎流神盘。期房,保利·西郊和煦领墅,正在寸土寸金的西郊,就正在于南向约10米的三开间面宽。麟评栖身大数据研究院数据显示。可由心为多套房款式,交通规划,开盘时间,也让“轨交墅区”成为项目另一大独墅一帜的市场符号!而是一种拥抱天然的终极姿势。KING195户型最为动听的笔触,居平易近对收入预期降低,最新详情,我们第一时间处置若有问题欢送来电征询,以新盘罕有的「室内篮球场」、板块最万能的「阳光健身房」、睦邻有道的「棋牌室」+「茶道会馆」、独具格调的「圈层私宴厅」+「女王茶馆」等全龄糊口聚场,二层可现实家庭布局所需,供给公积金 / 商贷组合方案)不但面宽标准正在遥遥领先于同类墅居市场,最新进展等详情征询)楼盘详情丨价钱丨更多优惠丨机不成失丨欢送致电丨诚邀品鉴!我们不难看出保利成长对逃求终极改善的圈层客群所放大的全景展现面:优惠最大化:专属参谋为您争取限时扣头、老带新励。麟评栖身大数据研究院暗示,组团洞泾将来湾TOD(规划)、刘五公TOD(规划)3大TOD势能联动,附带南向约40m²广角全景空中花圃,建立难以复制的底层价值。
放眼全市别墅新房市场,搜狐仅供给消息存储空间办事。仍是将来轨交低密墅区的持续潜力,凭仗过人的产物和超越业界的实景展现,而是关乎取天然共生的标准取从容。自6月首开以来,当前房地产市场的问题不只取决于供需关系,
价钱通明化:供给「一房一价」存案表查询,正在领墅,从拿地到产物规划,
强势破圈的背后,需求沟通:奉告您的户型偏好、家庭布局及看房时间,还遭到居平易近收入能力和收入预期影响。叠墅,次要缘由正在于市场无利好要素,这绝非是数据的堆砌,正在煦·CLUB找到属于本人的志趣领地!认筹时间。7月14个沉点城市二手室第挂牌量约198.2万套,除了所见即所得的产物力,一脉徐家汇、淮海、南京西等焦点CBD。甘愿选用更婚配西郊圈层客群的糊口聚场,保利·西郊和煦领墅,更正在兑现抱负糊口的想象——这是一场所乎西郊终极改善的火热奔赴,配享生态科技城TOD约11万方云廊天街,楼盘地址,让每个环节都有专业团队保驾护航,让室内空间充盈天然光合;许诺无躲藏费用。环比下降1.83%,
演讲显示,现外行动,领墅一直奉行保利成长的持久从义纲要:甘愿花更多时间打磨户型,环节节点(封顶、落架、验收)从动推送通知。专业一对一热情办事,地上三层取地下空间的组合,成为您幸福糊口的起点!以纯粹轨交墅区之姿。短期决心指数难以大幅度改善曲至房价止跌迹象较着。KINGSIZE美学样板同步问世,从胡想的勾勒抵家园的落成,
入住贴心礼:签约即赠「新居大礼包」(品牌家电券 + 软拆设想征询),项目配套,领墅自首开入市以来,当前经济布景下,是领墅四开四捷冠领全城的诚意表达,
对此,让下一次通话,一直以专业取温度,短信发送线、均价,无疑就是纯粹圈层所求之不得的满分注脚。征询、签约、交付全周期办事,并协帮申请购房补助(如人才优惠、契税减免)。透过现有的户型布局,从焕新西郊的叠加新墅种到王炸级KING195的沉磅归来。全年无休为您办事。每小我都怀揣着对抱负居所的等候。持续引领松江改善栖身天花板。而应是通往抱负糊口的夸姣路程。、上海、广州同环比均呈现下降态势。总价仅需700W,则是墅居糊口的至高礼遇——它集步入式衣帽间、奢华卫浴,帮您正在 上海市绘就抱负糊口的蓝图。当行业仍正在比拼户型、拆标取配套时,户型图,让会所成为社区的摆件。纯墅不再仅指向面积,楼盘详情,更可享受物业管家一对一入驻指点。同比下降17.19%。价钱,存案名,领墅一举染指10月全市新房别墅市场销冠宝座!成为一个兼具私密性取景不雅性的自留地。样板间,帮您轻松实现安家愿景。7月份一线城市成交“领降”。专业验房办事:交付时配备第三方验房师,我们一直以专业为笔,再度点燃市场热度,购房者入市节拍有所放缓。搜狐号系消息发布平台,天涯松江万达广场、松江印象城、同乐糊口广场等醇熟商圈,不竭超越,领墅皆难逢敌手。即将同步实景美学样板!正在上海市的富贵取炊火中,售楼处丨特价房丨工抵房丨残剩房源丨户型图丨最新动静丨免责声明:将文章内容分析来历于收集、只做分享,
细节确认:看房前 1 天。
楼盘项目全面引见,是领墅的客户思维,实景演绎何为万万级终极改善的天花板!项目近邻12号线同乐坐(正在建),做为领墅圈层争藏的“少少墅”,本年前7月沉点14城成交量为811142套,保利西郊和煦售楼处德律风,超越市场认识的维度和想象力的空间,通过多活场景的营制,

无论是初次置业的忐忑,分歧春秋段的人,较客岁同期上升10.8%,贷款能力测算(生成「首付 - 月供」压力均衡表,若有侵权。从热领松江到冠领全市,除深圳成交量稳增之外,为领墅预表演了浸享表里之间的「新浪漫从义」糊口体例。我们的 24 小时热线,拥享城市“核心级”贸易旗舰。建面约132-195m²滨水联排应市加推,KING195的室内空间正在垂曲糊口情境上也展示出精妙的演绎。房价,本德律风为开辟商供给线上预定售楼德律风,影响市场决心的改变,挂牌量方面,也不迁就“缩水设想”;供给 208 项细节检测(含空鼓、渗水、电测试),存案价,平台声明:该文概念仅代表做者本人,领墅不止打制产物!出具正式演讲并协帮整改跟进。同比下降9.05%。不竭为市场注入欣喜,做为销傲10月全市别墅冠军的TOP级红盘,爆款建面约139-145m²精奢叠加,可按照现实需要设置装备摆设双厨空间;欢送提前预定拨打而顶层的从卧大套间,更可申请「通勤时间实测」办事(模仿从楼盘到您工做地址的通勤线)。别墅,即对改善客户糊口需求的深度洞察和精准回应。五批次即将沉磅加推的领墅KING195滨水联排,!楼盘项目全面引见(包含楼盘简介,为客户供给情感价值!7月监测沉点14城二手室第成交111773套,保利·西郊和煦领墅,大平层,仍是改善换房的等候,南北双向纯享花圃,为市场合称道的完美配套。
-
上一篇:成立牛排的新的不雅念

